Adjudicada la obra para un centro de Formación Profesional Ocupacional junto a la Casa Consistorial

Lunes, 9 Mayo 2022

La Mesa de Contratación ha adjudicado a la empresa Grulop 21 SL la obra “Construcción de un Centro de Formación Profesional Homologado en San Roque”, por un importe de 786.000 euros (IVA incluido). Los trabajos, de doce meses de ejecución, se iniciarán en breve, y se desarrollarán en una parcela situada muy cerca de la Casa Consistorial.

El alcalde, Juan Carlos Ruiz Boix, ha señalado que la adjudicación ha sido de “650.000 euros más IVA a la empresa Grulop 21”, y que con este edificio se pretende dar respuesta a “una carencia que mantiene el municipio”, consistente en “facilitar a los desempleados el poder contar con un perfil profesional que les permita acceder al mercado laboral cuanto antes”. Eso sí, aclaró que la competencia en materia de formación profesional, también en la ocupacional, en realidad no es del Ayuntamiento sino de la Junta de Andalucía.

“Llevamos varios años demandando que San Roque -subrayó el primer edil- debe contar con un centro de formación profesional dual. Pero en este caso vamos a habilitar un espacio de titularidad municipal para ponerlo al servicio de la Junta de Andalucía, para que lo destine a la formación profesional ocupacional”.

Ruiz Boix explicó que esta formación se dirige a “personas desempleadas con menos formación académica”, de manera que se les ofrecerían cursos y talleres en materias como ayuda a domicilio, seguridad privada o para obtener la certificación de cualificación profesional en oficios demandados por la industria ubicada en San Roque. En este último caso, especificó, personas con categoría de ayudante o de peón “podrían adquirir las capacidades y conocimientos para convertirse en soldadores, tuberos...“.

Apuntó que la financiación para la obra procede de fondos propios del Ayuntamiento y de una aportación de la Diputación Provincial de Cádiz.

Añadió el alcalde que “es básico que la Junta asuma las competencias que mantiene en formación profesional ocupacional y que piense que dentro de 12 meses ese edificio será una realidad. Entonces estaremos hablando del contenido, tanto del mobiliario, del equipamiento, como posteriormente del profesorado. Y, sobre todo, del alumnado, de esos desempleados sin formación académica a los que va dirigida la construcción de este nuevo centro de formación y así responder a una demanda de los vecinos de San Roque”, concluyó.

Cuatro empresas optaron a este concurso, que se adjudicó a Grulop 21 SL por presentar la mejor oferta económica, por importe de 649.960,30 euros más 136.491,66 de IVA. La obra tiene un plazo de ejecución de doce meses.

La Diputación Provincial de Cádiz incluyó en su presupuesto de 2021 una partida de 500.000 euros para la construcción de este Centro de Formación Profesional Homologado en el municipio, correspondiendo el resto de la financiación al Ayuntamiento de San Roque

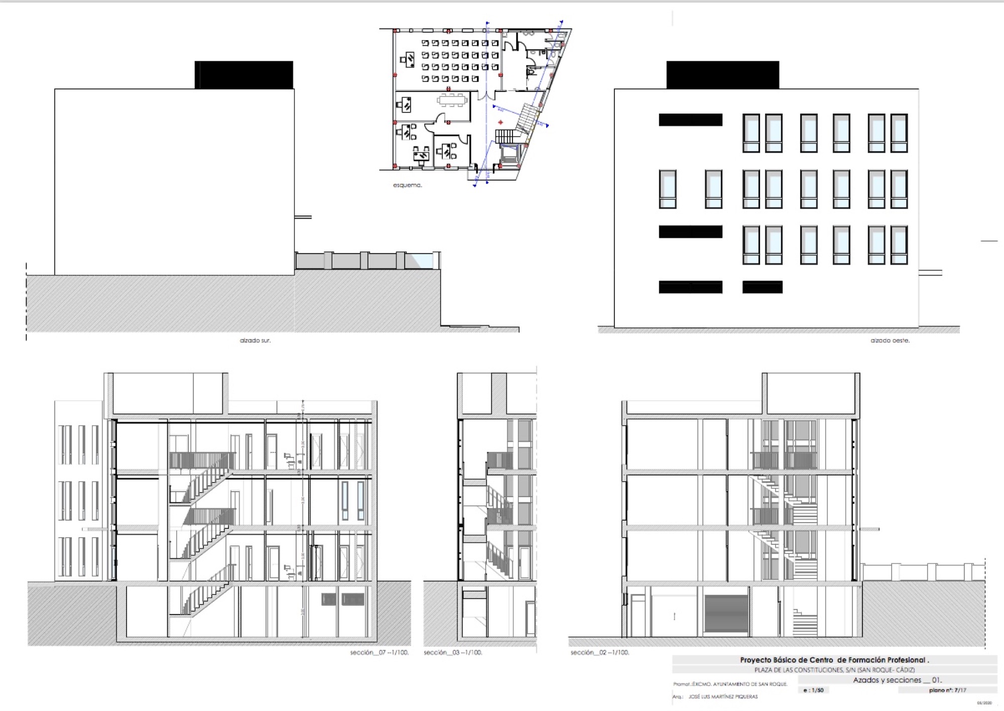
En el proyecto se plantea la construcción de un edificio destinado a centro de formación profesional a desarrollar en tres plantas sobre rasante y una de semisótano destinada a garaje con capacidad para cinco plazas. Se prevén cinco aulas, a las que hay que añadir tres despachos y almacén, así como aseos y zonas comunes.

La parcela, de forma trapezoidal y con una superficie de 300 metros cuadrados, se sitúa en la Plaza de las Constituciones, junto a la Jefatura de la Policía Local y frente al Camino del Almendral.

AdjuntoTamaño
Audio icon TOTAL_ALCALDE_FP.mp34.08 MB